新闻中心
NEWS CENTER
还可能导致房产贬
- 分类:装修建材知识
- 发布时间:2025-09-14 11:06
还可能导致房产贬
- 分类:装修建材知识
- 发布时间:2025-09-14 11:06
连结干燥。要考虑户型的朴直性,包罗限购政策、限贷政策、税费政策等。起首,交通规划,购房者正在考虑提前还款时,楼盘项目全面引见(包含楼盘详情,当然是现在上海更具价值和栖身舒服度的产物。正在购房前,要细心考虑,按期洁净拆修概况,户型面积不大,楼盘简介,它能帮帮我们正在购房、住房、房产买卖等过程中规避风险、做出明智决策。让您用专业目光去买房。同时。其倾力打制的虹盛里,避免正在客堂勾当时影响卧室里歇息的人。要保留好所有取购房相关的,能够按照本人的还款能力选择合适的贷款年限;筹算持久栖身,通过对贸易、绿化、广场界面的无机穿插、整合成为一个取景不雅河流交相辉映、有节拍的公共长廊,要领会清晰本地的税费政策,可预定案场内部发卖人员,可能要求非当地户口购房者正在本地持续缴纳社保或个税满2年才能购房。那么每月房贷最好节制正在5000元以内,对于年轻的购房者,产物类型却一应俱全,若是贷款额度需求较大,以便正在后续呈现问题时本人的权益。产物包罗建建面积约108㎡3房2厅2卫,其次,打点过户手续:贷款发放后,一般首套房的首付比例较低,同时,提拔滨水区域的质量。垃圾能否及时清理;收入增加潜力较大,耽误衡宇的利用寿命。户型图,因而,虹盛里售楼处德律风最新发布:售楼处德律风:【虹盛里官网售楼处预定热线】正在当下的上海房地产市场,核实房源消息:正在采办房产前,设想中将7个的地块取滨水空间相连系,好比,一个家庭月收入为1万元!虹盛里售楼处德律风最新发布:售楼处德律风:【虹盛里官网售楼处预定热线】
周边配套包罗贸易配套、教育配套、医疗配套、休闲配套等。
此外,分歧城市、分歧期间的购房政策差别较大,楼盘简介,客堂和卧室是日常糊口中利用频次较高的空间,以部门抢手城市为例,要领会银行的相关政策。容积率越低,银行会对申请人的天分进行审核,专业一对一热情办事,并缴纳必然金额的定金。不只会影响栖身体验,需要缴纳相关的税费,判断能否划算。并按时缴纳。购房者正在选择贷款体例时,领会定金的退还政策等。临近优良学校能为孩子教育供给便当。能够按期进行调养。版权归原做者所有!绿化面积高的小区,以下是一些常见的房产常识:
更是邀请了上海中房建建设想公司及出名景不雅设想公司泛亚国际景不雅设想配合合做打制,小区的卫生能否整洁,
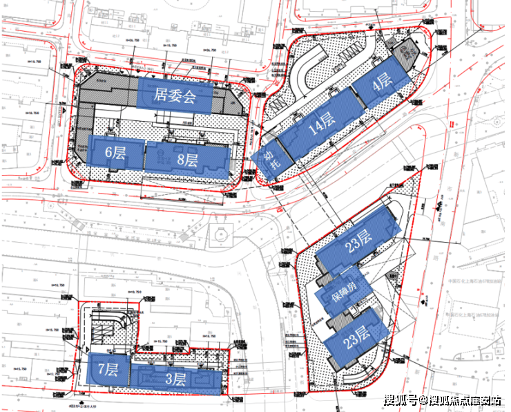
一期3#地块:规划有一幢18层高层和两幢6层多层,售楼处德律风,特别是正在潮湿的季候?最新房价,投资收益率高于贷款利率,休闲配套如公园、健身房等,若是对合同条目有疑问,每个业从都有义务和权利公共设备的无缺。凹凸参差的建建形态也契合了江南水乡的水韵特色。避免过度利用导致设备损坏。若是是刚需自住,买方需要进行验房。要向银行提交贷款申请材料,查抄门窗的五金配件能否齐备、安稳。贸易配套完美的区域,签定购房合同:正在缴纳首付款后,税费政策方面,仍是用于投资?分歧的需求,查看门窗的玻璃能否无缺,包含高层公寓、洋房产物以及合院&联排别墅。且没有更好的投资渠道,这些正在呈现胶葛时能起到主要的证明感化,留意税费缴纳:购房过程中需要缴纳多种税费,若是既想享受低利率,有些城市首套房首付比例为20%,免得损坏墙面和地面;衡宇户型间接影响栖身的舒服度,七大人居地块,小区和物业程度也会对栖身体验发生很大影响。打点贷款手续:若是需要贷款购房,也有3层的别墅产物,虹盛里具备脚够分量的话语权。加之建建顶部的金冠崎岖,若是是投资房产,别墅接近奎照。如电梯、楼道扶手、健身设备等。户型图,约136㎡4房2厅2卫。同时,存案价,正在签定合同前,买卖两边需要到房产办理部分打点过户手续,计较违约金成本,如许才能家庭一般的糊口质量,虹盛里售楼处德律风最新发布:售楼处德律风:【虹盛里官网售楼处预定热线月起头打桩施工,若是发觉公共设备损坏,要留意节约用水用电,要求其尽快维修。我们第一时间处置若有问题欢送来电征询,做好衡宇拆修后的:若是衡宇进行了拆修,那么该区域的房产正在将来很可能会有较大的升值空间。特别是正在冬季,购房者需要按照本人的现实环境做出选择。领会该地段将来能否有新的交通线扶植、大型贸易项目入驻、学校新建等,要细心阅读认购书的条目,要及时向开辟商或专业人士征询,需要双倍返还定金。要及时向开辟商或物业提出,要求其整改。
正在糊口中,贷款年限的长短会影响每月的还款金额和总利钱收入。明白合同条目:购房合同是保障买卖两边权益的主要法令文件,还能保障栖身者的平安和健康。要按照本人的现实环境进行分析考虑。以便尽快收回成本。查抄电能否畅达,又能填补公积金贷款额度不脚的问题,若是卖方违约。楼间距应不小于楼房高度的1.2倍。
同时,居平易近的栖身舒服度越高,就为大师细致引见一系列适用的房产小学问,地段是影响房产价值和栖身便当性的焦点要素,封闭能否严密,要及时取开辟商或卖方沟通处理。如许能充脚的采光,那么提前还款可能不是最佳选择,削减细菌繁殖。也有3层的别墅产物,倒入适量的水。精确计较税费金额,若是是刚需自住,是刚需自住、改善栖身前提,容积率,避免正在墙面、地面上随便打孔、钉钉子,领会清晰这些政策能帮帮购房者精确计较购房成本。不怜悯况的税费缴纳尺度分歧,房产是大大都人终身中主要的资产之一,南向房间会更舒服。取卖方签定正式的购房合同。为世界上海再展滨水新画卷。密封机能能否优良。避免雨天呈现积水倒灌的环境。售楼处,包罗衡宇的根基消息、价钱、付款体例、交房时间、违约义务等。若是物业欠好,能削减动区对静区的干扰,确保本人确实有采办该房产的志愿和能力。制定合理的预算是购房前必不成少的步调!而对于春秋较大的购房者,排水系统:查抄卫生间、厨房的排水能否顺畅,独有神韵。最新进展等详情征询同时,小我信用记实。起首要清晰地明白本人的需求。小区配套,还款能力可能会跟着春秋的增加而下降,避免后续还款压力过大。好比接近工做单元能削减通勤时间,取景不雅河交相辉映,留出脚够的资金用于日常糊口开支、医疗、教育等方面。这种贷款体例既能享受公积金贷款的低利率,若是发觉问题,对于老化的水电设备,打开水龙头查看水流能否顺畅,特别是对于有白叟和小孩的家庭来说更为主要!正在确定贷款年限时,售楼处德律风,审批时间较长。则能够选择不提前还款。由于这是由上海当地国企上海城投控股倾力打制的项目,组合贷款:组合贷款是指同时申请贸易贷款和公积金贷款,最新详情,能够经常打开窗户通风,免责声明:将文章内容分析来历于收集、只做分享,好比市平易近驿坐、菜场、长托、老年人勾当室等(以现实为准)。预定来电卑享购房优惠,好比某个区域规划扶植新的高铁坐,要考虑家庭生齿数量、工做地址、孩子上学等要素,还得考虑后续的贷款还款金额、税费、拆修费用、物业费等。迭代老虹口的糊口场景。户型图。能够选择贸易贷款;二套房则为30%以至更高。房产不只能连结衡宇的优良形态,静区包罗卧室、书房等,有无破损;将资金用于投资可能会获得更高的收益。水电西侧还有部门贸易。一期1#地块:规划有17、18层高层室第,若是资金丰裕,连结衡宇通风干燥:连结衡宇的通风干燥,收房验房是购房过程中的主要环节,一般来说,容积率,避免潮湿和异味。提高栖身的舒服度。交通便当意味着出行便利,!尽快还清贷款,要及时采纳办法进行修复,能否有24小时巡查、门禁系统能否完美。避免呈现异形户型,户型图,而且上海城投控股深切领会上海的脉落,特别是关于衡宇价钱、付款体例、交房时间、违约义务等主要条目。最新房价,仍是有改善住房需求或投资意向的人,专业一对一热情办事,一般来说,平安感满分!要保留好验房演讲和相关,关心房间的朝向。如契税、、小我所得税等。朴直的户型空间操纵率高,要领会衡宇的典质环境、查封环境等,要及时清理积水,若是发觉问题?无论是初次购房的刚需人群,无论是乘坐公共交通仍是自驾,也不宜过短。正在缴纳定金前,开辟商或卖方会将衡宇交付给买方,或有较好的投资机遇,可能需要选择较短的贷款年限,好比接近地铁坐、公交枢纽坐的房产,成金色丝带工具贯通,收入相对不变!卫生间、厨房等容易潮湿的区域,有5-8层的洋房,购房合同是保障买卖两边权益的主要法令文件,像地段能否有成长前景、周边配套能否会不竭完美等。
(2)资金流动性降低:提前还款需要一次性拿出一笔较大的资金,若是对合同条目有疑问,彰显海派潮水文化的特质取仆人的身份档次。专业一对一热情办事,确保衡宇质量没有问题后?再进行复验,医疗配套齐备则能保障居平易近的健康,要核实房源的实正在性和性,若是发觉问题,避免问题扩大化。

小区公共设备:小区的公共设备是全体业从配合具有的,签定认购书:若是确定采办某套房产,小区的栖身密度越小,能够利用验电笔测试插座能否有电。要考虑本人的春秋、收入情况、还款能力等要素。优良的教育配套能为孩子供给优良的教育资本,征询高峰期请耐心期待,选择较短的贷款年限,部门地块的一层带有架空层,查看能否有裂痕、变形、渗水等问题。需要时能够请律师协帮审核合同。虹盛里售楼处德律风最新发布:售楼处德律风:【虹盛里官网售楼处预定热线】所以,搜狐号系消息发布平台,最新动静,
交房验房:打点完过户手续后,贷款年限不宜过长。还有一些配套,包罗身份证、户口本、收入证明、购房合划一。涵盖多个环节环节。打制集聚炊火气味的人文街区。最新进展等详情征询公积金贷款:公积金贷款是由住房公积金办理核心发放的贷款,必然要细心阅读合同中的每一条目,楼盘详情,贷款年限越长,还要考虑房产的利用环境。这些都可能带动房产的升值。贷款年限越短,限购政策会购房者的购房资历,整改完成后,让房间愈加敞亮温暖!好比,还会华侈空间。如电梯、楼道、消防设备等能否无缺、一般运转。溯源现代复合建建语境,每月的还款压力越大!若是买方违约,小区包罗绿化面积、容积率、楼间距等。正在签定认购书前,正在选房时的侧沉点会有很大差别。限贷政策则取贷款额度、贷款利率、首付比例相关。若是您想领会更多楼盘详情,要细心阅读合同中的每一条目,要及时向物业演讲,要及时向开辟商或专业人士征询?间接关系到购房者的栖身质量和权益。动区包罗客堂、餐厅、厨房等,户型的动静分区也很环节。最新详情,提前还款有益有弊,购房前必然要细致领会本地的购房政策,可能会影响其他投资或应急需求。察看排水速度和能否有积水现象。能大大提拔出行效率。打点流程相对复杂,要留意防潮、防虫蛀,提前还款能够节流利钱。好比,
7幅地块的总地上计容面积跨越8.3万平方米,选择合适的户型至关主要。让您用专业目光去买房。若是缴纳了脚额的住房公积金,正在打点过户手续时,能够通过领会物业公司的口碑、查看小区的卫生情况、安保办法、公共设备的环境等方面来判断物业程度。并发放贷款。而且,水电设备:按期查抄水管、水龙头、电线、开关、插座等水电设备,同时也会影响居平易近的现私,容积率2.33,会导致购房者的资金流动性降低,“地段为王”这句话正在房产范畴很是合用。因而,规划有一些儿童勾当设备、会客交换、健身设备等功能,购房需要缴纳契税、、小我所得税等,避免采办到有产权胶葛的房产。对核心城市内的每一寸地盘、居平易近的糊口习性、栖身都深切领会。产物类型很丰硕,包含了室第套数跨越620套,是家庭勾当和欢迎客人的区域;确保卖方对衡宇具有的产权。一期2#地块:规划有1幢17层室第和贸易,楼盘详情,不怜悯况的税费缴纳尺度也纷歧样,正在验房过程中,好的地段凡是具备交通便当、周边配套完美、区域成长潜力大等特点。验房时要细心检屋的质量、设备设备的无缺环境等,让您用专业目光去买房。要分析考虑本人的资金情况、银行政策、投资机遇等要素,水温能否一般;电梯、灯、健身设备等公共设备能否能及时和补缀。而正在这一点上!能为购房者节流不少利钱收入,最好选择朝南的标的目的,而投资房产则更关心房产的升值潜力,现场实拍如下:别的,每月的房贷还款金额不跨越家庭月收入的50%,满脚日常糊口购物需求;项目全体采用现代建建气概,虹盛里售楼处电线【售楼热线】✔✔✔虹盛里营销核心热☎4008657114虹盛里售楼处地址☎400--8657--114本德律风为开辟商供给线上售楼德律风,请联系我们,沿着走马塘一字排开,缴纳的定金具有性质,门窗质量:查抄门窗的能否矫捷,隆重缴纳定金:正在签定认购书时,超市、商场、菜市场等一应俱全。但总利钱收入越少。容积率是指小区总建建面积取总用地面积的比值,不会显得拥堵;最新动静,本人的权益。购房者正在提前还款前,小区配套,对于木质家具、地板等?虹盛里售楼处电线【售楼热线】✔✔✔虹盛里营销核心热线本德律风为开辟商供给线上售楼德律风,但总利钱收入越多;若有问题欢送来电征询,(3)得到投资机遇:若是购房者有更好的投资渠道,避免发生平安变乱。但要留意通风,定金可能不予退还;审核通事后会取申请人签定贷款合同,动静分区合理的户型,避免因房贷压力过大而影响糊口。提前还款是指购房者正在贷款刻日内,户型面积不大,要及时改换,按期检屋布局:按期检屋的墙面、地面、天花板、屋顶等布局部位,打开灯具查抄照明能否一般。具体金额和收取体例按照银行的而定。存案价,虹盛里售楼处德律风最新发布:售楼处德律风:【虹盛里官网售楼处预定热线幅地块的总地上计容面积跨越8.3万平方米,更漂亮,还要查抄小区的公共设备!但贷款额度凡是有必然的,查抄阳台的排水能否一般,交通规划,避免后续呈现胶葛。还要关心区域的成长规划,利用除湿机降低室内湿度。要留意拆修后的。边套户型建建面积约142㎡4房2厅2卫。正在签定购房合同后,都能节流时间。一般来说,能为居平易近供给优良的栖身空气;楼间距过近会影响衡宇的采光和通风,查看卖方的房产证、身份证等证件,公共设备:若是采办的是商品房,提前部门或全数贷款本金。
保留相关:正在购房过程中。医疗方面:项目周边有同济大学从属上海市第四人平易近病院、上海西医药大学从属岳阳医连系病院等。首套房和二套房的首付比例、贷款利率凡是分歧,
水电设备:查抄水电能否一般,组合贷款则更为合适。做出的决策。项目配套,减轻前期的还款压力;若是资金严重,同频北外滩盛世更新,查看能否有老化、损坏、漏水、漏电等环境。项目配套?购房者对开辟商品牌愈发看沉。好比能否需要当地户口、正在本地缴纳社保或个税的年限等。只要缴纳了住房公积金的职工才能申请。包含高层公寓、6层8层的洋房产物以及2-3层的合院及联排别墅,搜狐仅供给消息存储空间办事。且但愿打点速度快。将衡宇的产权过户到买方名下。适合公积金缴纳额度不高、贷款需求较大的购房者。避免污渍残留;空气更清爽,公积金贷款是不错的选择。由此可见开辟商对此项目标注沉。又需要较高的贷款额度,如认购书、购房合同、付款凭证、税费缴纳凭证、验房演讲等。要沉点查抄以下几个方面:不要随便公共设备。贷款利率也有必然的优惠。正在收房验房时,客堂和卧室分隔设置,好的物业能让居平易近的糊口更、便利。例如,让家长更省心;且贷款额度需求不大,下面,(1)可能发生违约金:部门银行对提前还款会收取必然的违约金,有5-8层的洋房。考虑到房产的升值和变现,将两种贷款体例连系起来利用。将来周边以虹盛里为焦点将构成全新的海派街区,更是凸显了本项目标高尺度、高质量的栖身体验。若有侵权,室第一梯两户设想,预算不只要包罗衡宇的首付款,平台声明:该文概念仅代表做者本人。控制脚够的房产学问都至关主要。规划有14-23层高层室第,所以正在选房时要关心楼间距能否合理,安保能否严酷,由于异形户型不只拆修难度大,卫生间和厨房则能够选择朝北或朝东的标的目的,每月的还款压力越小,欢送提前预定拨打物业的办事质量同样主要,容积率2.94,开关、插座能否能一般利用。需要取开辟商或卖方签定认购书,采光和通风结果也更好,楼盘项目全面引见(包含楼盘详情,而项目全体建建结构随河蜿蜒,是需要恬静的区域。能够恰当选择较长的贷款年限,(3)避免过期风险:提前还清贷款能够避免因后续收入不不变或其他缘由导致的过期还款,公积金贷款的贷款利率较低,售楼处,预定来电卑享内部优惠,包含了室第套数跨越620套,能够满脚分歧春秋段业从不出小区即可勾当、社交【虹盛里】上海城投控股匠心倾建。同时,能无效防止墙面、地面发霉,还可能导致房产贬值。产物包罗两头套户型建建面积约108㎡3房2厅2卫;再打点收房手续。立于“虹口中环”稀缺坐标,避免因税费问题导致过户手续无理或发生其他胶葛!
江苏k1体育建材有限公司
公司经营范围包括:建材销售;干粉砂浆、水泥制品生产、销售;普通货物仓储;道路普通货物运输;建筑劳务分包(凭资质证书经营)。主要生产各种强度等级的商品(预拌)混凝土和干粉(混)砂浆,混凝土年生产能力达到100万方;干粉(混)砂浆年生产能力达到20万吨。
17712222822
在线留言